Basis
- Type: villa
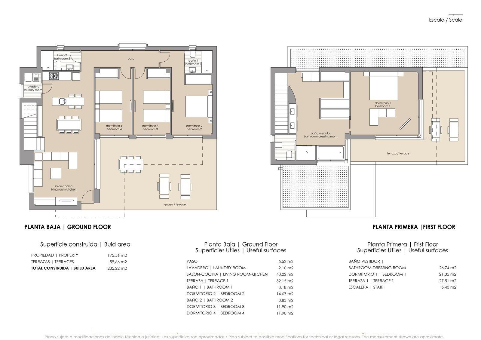
- Slaapkamers: 4
- Badkamers: 3
- Apart toilet: 0
- Vloeren: 2
- Gebied : 120 m²
- Kavelgrootte: 305 m²
Beschrijving
-
Beschrijving:
Nieuwbouwwoningen in Vistabella Golf Resort – Orihuela Ervaar het moderne mediterrane leven in het hart van de Costa Blanca met deze prachtige nieuwbouwwoningen in Vistabella Golf Resort. Gelegen tussen San Miguel de Salinas en Los Montesinos, in de gemeente Orihuela, biedt dit exclusieve project luxe, comfort en een ongeëvenaarde locatie voor zowel golfliefhebbers als mensen die op zoek zijn naar een bepaalde levensstijl. Twee verschillende villamodellen Kopers kunnen kiezen uit twee elegante ontwerpen: Gelijkvloerse villa’s met 3 slaapkamers, 2 badkamers en een solarium op het dak. Villa’s met twee verdiepingen, 4 slaapkamers, 3 badkamers en een solariumterras op de eerste verdieping. Beide modellen staan op percelen van ongeveer 300 m² en beschikken over een privézwembad en parkeergelegenheid op het terrein. Premium kwaliteit en modern comfort Elke villa is voorzien van luxe afwerkingen, waaronder volledig geïnstalleerde airconditioning, ingerichte keukens met apparatuur, buitenverlichting, elektrische rolluiken en elegante doucheschermen in de badkamers. De combinatie van stijl en functionaliteit zorgt voor een woning die zowel mooi als praktisch is. Exclusieve levensstijl in een golfresort Vistabella Golf Resort is een omheinde gemeenschap met een 18-holes golfbaan, paddle-tennisbanen, een bowlingbaan, een supermarkt en een breed scala aan bars en restaurants. Toekomstige upgrades zullen het resort tot een echte 5-sterrenbestemming maken, met geplande toevoegingen zoals een champagnebar, een sushibar, een spahotel, een kunststrand, een tennisbaan, een voetbalveld en een gastronomische bar. Toplocatie aan de Costa Blanca Het resort biedt uitstekende toegang tot de beste stranden, golfbanen en diensten van de regio. Afstanden tot belangrijke bezienswaardigheden zijn onder andere: Strand van La Mata: 18 km Strand van Guardamar del Segura: 20 km Torrevieja: 15 km Luchthaven Alicante: 55 km Luchthaven Murcia: 68 km Villamartín Golf: 12 km Las Colinas Golf & Country Club: 14 km Uw droomhuis wacht op u Of het nu gaat om een permanente woning, een vakantiehuis of een investering in verhuur, deze nieuwbouwwoningen in Vistabella Golf Resort bieden uitzonderlijke waarde in een van de meest gewilde kustgebieden van Spanje. Neem vandaag nog contact met ons op om een bezichtiging te regelen en uw plek in deze luxe golfgemeenschap veilig te stellen. 971
Toon alle beschrijvingen
Plaats
Gebouwdetails
- Parkeren: 1 plek (open)
Voorzieningen en Functies
- Voorzieningen:

Geef een reactie