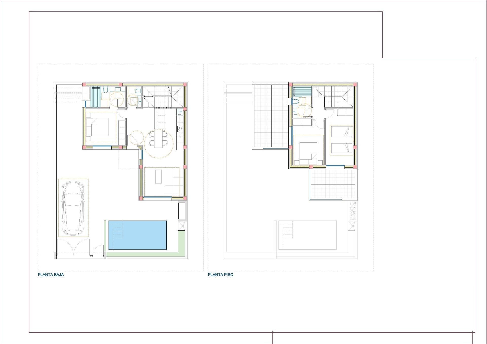
Basis
- Type: villa
- Slaapkamers: 3
- Badkamers: 2
- Apart toilet: 1
- Vloeren: 2
- Gebied : 79 m²
- Kavelgrootte: 176 m²
Beschrijving
-
Beschrijving:
Nieuwbouwwoningen in San Fulgencio met privézwembad en modern design Exclusief project van 7 vrijstaande villa’s op het zuiden aan de Costa Blanca Ontdek dit aantrekkelijke project van 7 moderne, vrijstaande villa’s in San Fulgencio, een charmante gemeente in de provincie Alicante. Deze woningen zijn ontworpen in een eigentijdse stijl en liggen op het zuiden om optimaal te profiteren van het natuurlijke licht. Ze combineren comfort, kwaliteit en een ideale ligging aan de zuidelijke Costa Blanca. Functionele indeling en buitenruimtes De villa’s zijn verdeeld over twee verdiepingen en bieden een uitstekende indeling: 3 ruime slaapkamers, waarvan één op de begane grond 2 complete badkamers en 1 extra toilet Volledig ingerichte open keuken met inbouwapparatuur Lichte woonkamer met toegang tot buiten Buiten beschikt elke woning over: Privézwembad van 3×5 meter Parkeerplaats op het perceel Twee open terrassen op de bovenverdieping, ideaal om de hele dag van de zon te genieten Superieure kwaliteit en energie-efficiëntie De villa’s zijn gebouwd met hoogwaardige materialen en gericht op duurzaamheid: Elektrische rolluiken Buitenkozijnen met dubbele beglazing Aerothermisch systeem voor warm water Voorbereiding voor airconditioning via luchtkanalen Badkamers uitgerust met meubels, douchewanden en spiegels Strategische ligging in San Fulgencio San Fulgencio biedt de rust van een residentiële omgeving met alle voorzieningen binnen handbereik, zoals restaurants, supermarkten, apotheken en meer. Bovendien zijn de belangrijkste bezienswaardigheden in de omgeving gemakkelijk te bereiken dankzij de uitstekende ligging: Strand van La Marina – 7 km Guardamar del Segura – 10 km Golfbaan La Marquesa (Ciudad Quesada) – 6 km Centrum van Torrevieja – 18 km Internationale luchthaven Alicante-Elche – 30 km Ideaal om te wonen, te investeren of van uw vakantie te genieten Deze villa’s bieden een unieke kans voor zowel permanente bewoning als vastgoedinvestering in een van de meest gewilde gebieden van de zuidelijke Costa Blanca. Of u nu wilt genieten van de mediterrane zon of op zoek bent naar een tweede woning, dit project biedt kwaliteit, design en een uitstekende locatie. Neem vandaag nog contact met ons op voor meer informatie of om een bezoek te plannen en ontdek uw nieuwe thuis in San Fulgencio. 971
Toon alle beschrijvingen
Plaats
Gebouwdetails
- Parkeren: 1 plek (open)
Voorzieningen en Functies
- Voorzieningen:

Geef een reactie