Basis
- Type: Apartment
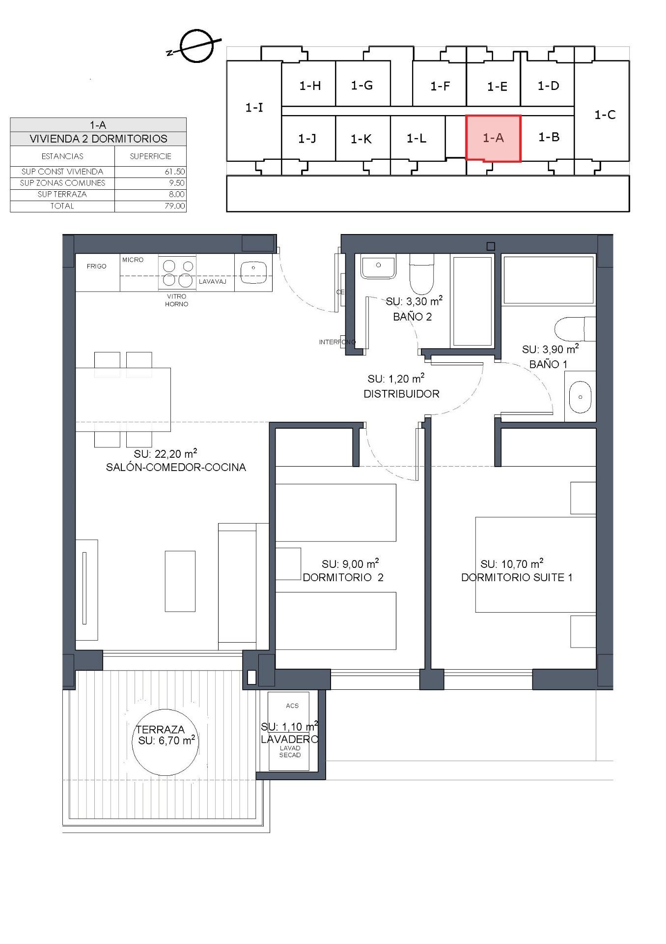
- Slaapkamers: 2
- Badkamers: 2
- Apart toilet: 0
- Vloeren: 1
- Gebied : 51 m²
- Kavelgrootte: 0 m²
Beschrijving
-
Beschrijving:
NIEUWBOUWWONING IN BENIJOFAR Nieuwbouwwijk met gemeenschappelijk zwembad op het dak in het centrum van het charmante dorpje Benijofar. Je kunt kiezen uit moderne appartementen met terrassen of penthouses met solarium. Nieuwbouw moderne woningen met een open keuken en woonkamer, 2 en 3 slaapkamers, 2 badkamers, terrassen. Een ondergrondse parkeerplaats is mogelijk tegen een meerprijs. Benijofar is een mooi dorp met een charmante kerk en een aantrekkelijk plein/plaza gelegen in het binnenland aan de zuidelijke Costa Blanca, dicht bij de toeristische badplaatsen Guardamar del Segura en Torrevieja. Benijofar is ook een populaire plek om te verblijven tijdens de zomervakantie omdat het dicht genoeg bij de badplaatsen ligt en toch rustig genoeg om er even tussenuit te zijn. Er zijn verschillende golfbanen in de buurt, evenals waterparken in het nabijgelegen Rojales en Torrevieja. De dichtstbijzijnde en beste stranden van Benijofar liggen op ongeveer vijftien minuten rijden en behoren tot de beste stranden van de zuidelijke Costa Blanca, bij Guardamar del Segura en Torrevieja. Er zijn ook regelmatige busdiensten van Benijofar naar Guardamar del Segura en Torrevieja met gemakkelijke toegang tot de stranden. 20 minuten rijden naar de luchthaven van Alicante met regelmatige vluchten vanuit heel Europa.
Toon alle beschrijvingen
Plaats
Gebouwdetails
- Parkeren: Geen
Voorzieningen en Functies
- Voorzieningen:

Geef een reactie