Basis
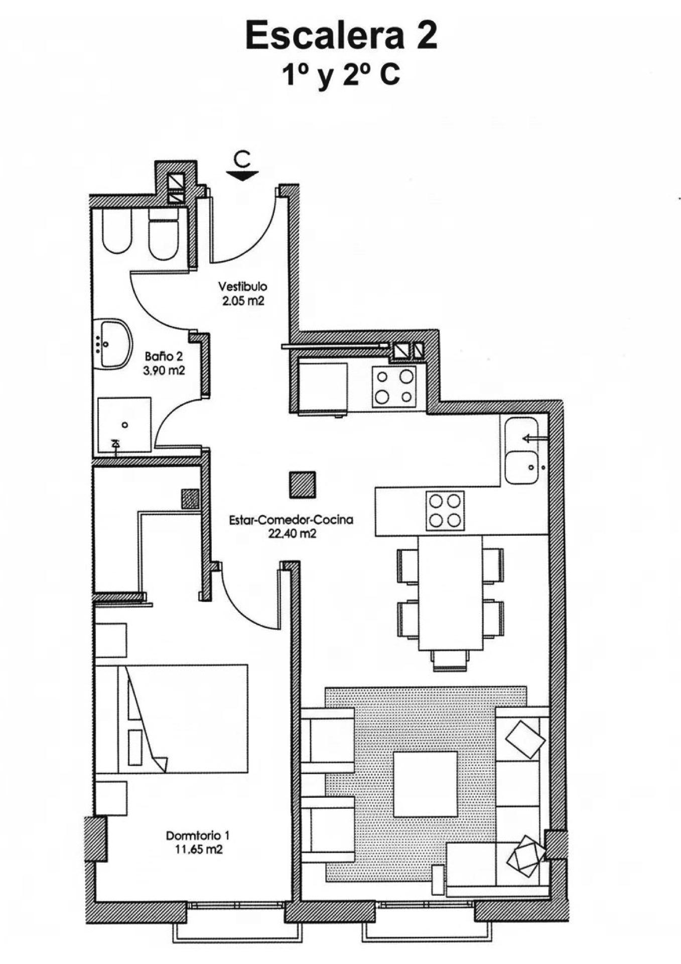
- Type: Apartment
- Slaapkamers: 1
- Badkamers: 1
- Apart toilet: 0
- Vloeren: 1
- Gebied : 40 m²
- Kavelgrootte: 0 m²
Beschrijving
-
Beschrijving:
Nieuwbouwappartementen te koop in Avileses Murcia: uitstekende investeringsmogelijkheid Woongebouw met 19 nieuwbouwappartementen Dit nieuwbouwproject in Avileses Murcia biedt een selectie van 19 appartementen die zijn ontworpen om comfort, functionaliteit en een uitstekende prijs-kwaliteitverhouding te bieden. Kopers kunnen kiezen uit woningen met één, twee of drie slaapkamers en één of twee badkamers, waardoor dit een ideale optie is voor stellen, gezinnen of investeerders die op zoek zijn naar een betaalbare woning op een goed bereikbare locatie. Het gebouw heeft een lift voor gemakkelijke toegang tot alle verdiepingen en sommige appartementen hebben een eigen parkeerplaats. Hoogwaardige afwerking en optionele keukenpakketten Alle appartementen zijn voorzien van een pre-installatie voor airconditioning, zodat u het hele jaar door kunt genieten van comfort. De keukens worden ongemeubileerd opgeleverd, zodat kopers hun ruimte naar eigen wens kunnen inrichten. Voor extra gemak is er een optioneel upgrade-pakket beschikbaar met keukenmeubilair, apparatuur, badkamerkast met spiegel en doucheschermen. Dit pakket is verkrijgbaar vanaf 5200 euro voor appartementen met één slaapkamer en biedt uitstekende waarde en een kant-en-klare optie voor toekomstige bewoners. Toplocatie in het centrum van Avileses Het gebouw ligt in het hart van Avileses, een rustig dorpje dat deel uitmaakt van de gemeente Murcia. Dankzij de centrale ligging zijn dagelijkse voorzieningen op loopafstand, waaronder supermarkten, cafés, restaurants en lokale diensten. Het gebied staat bekend om zijn ontspannen levensstijl, agrarische omgeving en de nabijheid van verschillende gerenommeerde golfbanen, zoals Peraleja Golf (6 km) en New Sierra Golf (8 km). De prachtige stranden van de Mar Menor en de Middellandse Zeekust liggen ook op slechts ongeveer 20 km afstand. Uitstekende verbindingen in de hele regio Avileses profiteert van goede wegverbindingen naar nabijgelegen steden en belangrijke bestemmingen in heel Murcia. Opmerkelijke bezienswaardigheden zijn onder andere Treinstation Balsicas op 7 km San Javier op 14 km San Pedro del Pinatar op 22 km Het centrum van Murcia op 29 km Aeropuerto Internacional de Murcia Corvera op 16 km Dankzij de goede bereikbaarheid van de belangrijkste wegen kunnen bewoners snel naar winkelcentra, recreatiegebieden, golfresorts en attracties aan de kust reizen. Betaalbare nieuwbouwwoningen klaar in januari 2026 Dit project biedt een zeldzame kans om een gloednieuwe woning in Murcia te kopen tegen een uitzonderlijke prijs. Of u nu op zoek bent naar een permanente woning, een vakantiehuis of een investering om te verhuren, deze appartementen bieden een groot potentieel in een groeiende regio. Neem vandaag nog contact met ons op voor meer informatie of om uw woning te reserveren voordat deze wordt opgeleverd. 971
Toon alle beschrijvingen
Plaats
Gebouwdetails
- Parkeren: Geen
Voorzieningen en Functies
- Voorzieningen:

Geef een reactie