Basis
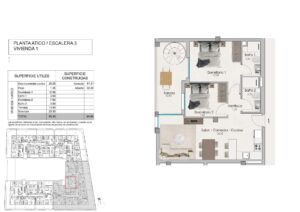
- Type: penthouse
- Slaapkamers: 2
- Badkamers: 2
- Apart toilet: 0
- Vloeren: 1
- Gebied : 85 m²
- Kavelgrootte: 0 m²
Beschrijving
-
Beschrijving:
NIEUWBOUW WOONCOMPLEX IN SANTA POLA Nieuwbouw modern omheind wooncomplex bestaande uit 1, 2 en 3 slaapkamer appartementen en penthouses met 2 complete badkamers. Het complex bestaat uit 4 trappenhuizen van appartementen met ruime aangelegde gemeenschappelijke ruimtes, waaronder een zwembad, ontspanningsruimte en fitnessruimte. Alle woningen zijn zorgvuldig ontworpen om je een uitzonderlijke woonervaring te bieden, met hoogwaardige afwerking en een moderne stijl. Geniet van de ruime terrassen, waar je kunt ontspannen, al fresco dineren en de meest spectaculaire zonsondergangen bekijken. De locatie is gewoon onverslaanbaar: naast het centrum van Santa Pola en het palmbos, en op slechts een paar minuten van de promenade, ben je dicht bij een breed scala aan restaurants, bars en supermarkten. Uitstekende verbinding met de nationale weg 332, die de hele zuidelijke Costa Blanca met elkaar verbindt, en met de luchthaven in slechts 15 minuten.
Toon alle beschrijvingen
Plaats
Gebouwdetails
- Parkeren: 1 plek (open)
Voorzieningen en Functies
- Voorzieningen:

Geef een reactie