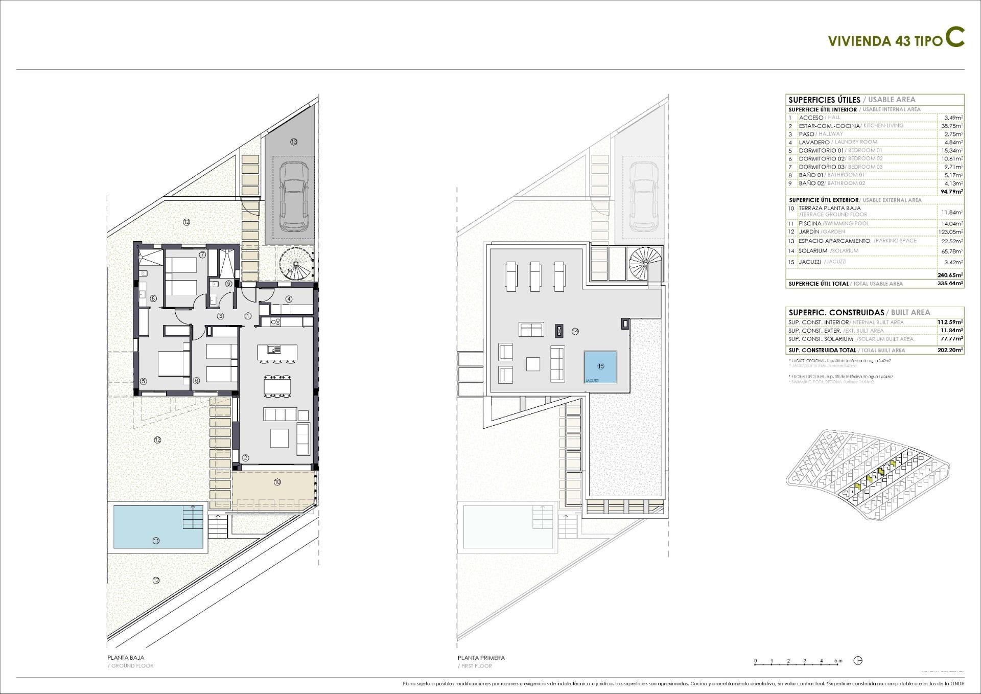
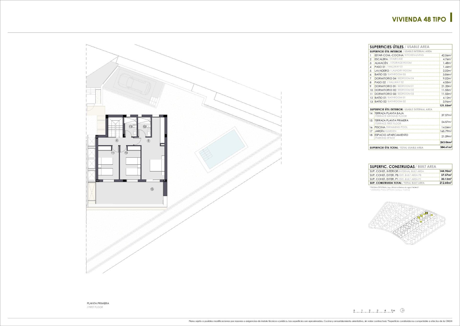
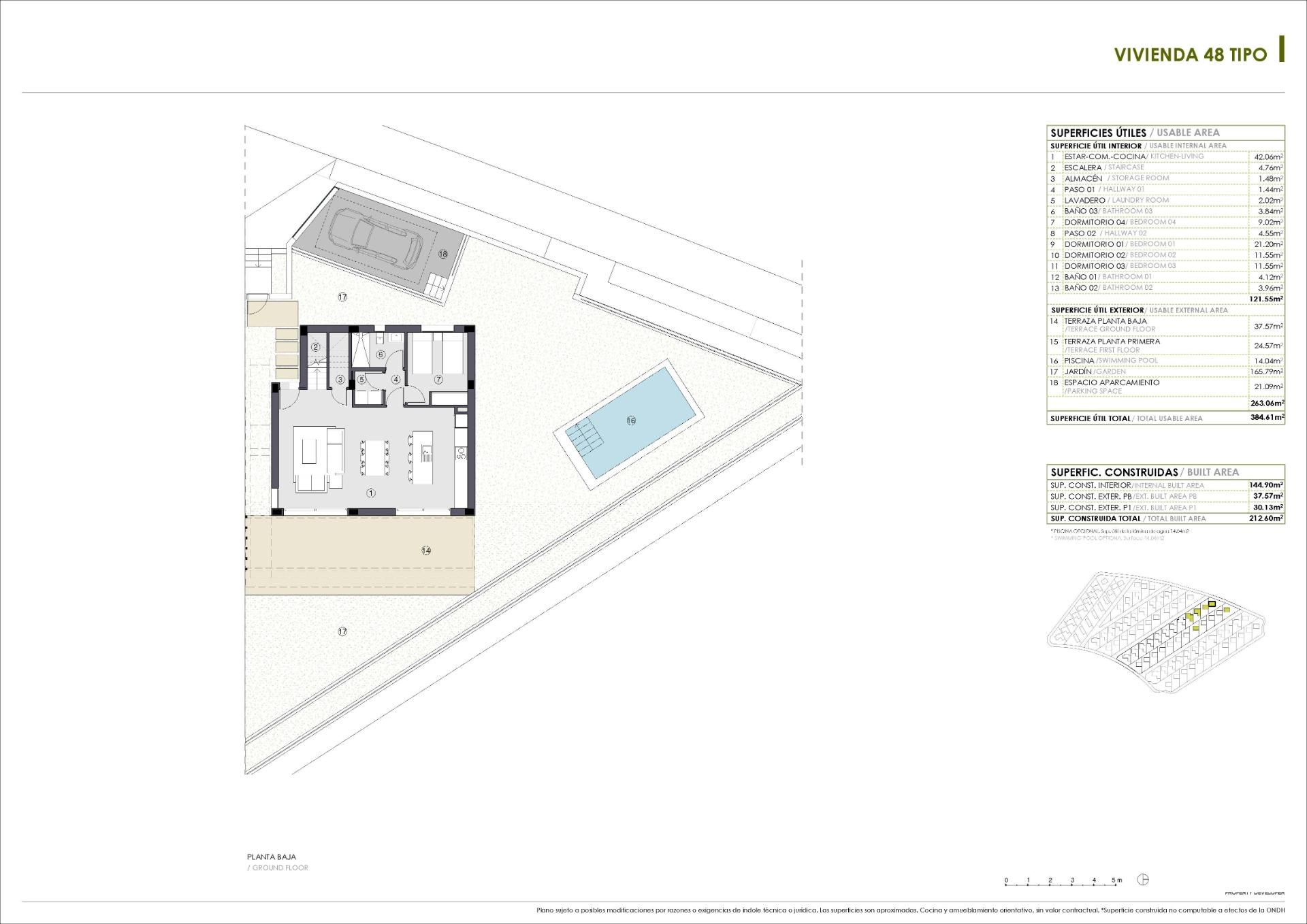
Basis
- Type: villa
- Slaapkamers: 3
- Badkamers: 2
- Apart toilet: 0
- Vloeren: 1
- Gebied : 94 m²
- Kavelgrootte: 325 m²
Beschrijving
-
Beschrijving:
NIEUWBOUW VILLA’S IN POLOP Het nieuwbouwproject van villa’s in Polop biedt je een ruimte waar je de mediterrane levensstijl ten volle kunt beleven. Kies tussen villa’s met 2 of 3 slaapkamers in Polop, ontworpen om de essentie van de Middellandse Zee te vangen en geniet van de omgeving in de buitenruimtes. De hoogtepunten van dit project zijn de adembenemende panoramische uitzichten op twee unieke locaties: de baai van Altea met zijn diepblauwe zee en de majestueuze bergen van Alicante met hun toppen en vegetatie. Laat je hypnotiseren door deze ongelooflijke uitzichten vanaf de terrassen van deze huizen in Polop die ook grote ruimtes hebben die je uitnodigen om te profiteren van het uitzonderlijke klimaat van de Costa Blanca en die je kunt aanpassen aan jouw voorkeuren. De afmetingen zijn ideaal voor het plaatsen van tafels, stoelen, ligstoelen of welk buitenmeubilair je maar wilt. Het project is doordacht en ontworpen om van het buitenleven te genieten, niet alleen met terrassen, maar ook met tuinen, veranda’s en solariums in elk huis. Bovendien bieden de meeste huizen in Polop de mogelijkheid om een privézwembad (al dan niet overloopbaar, afhankelijk van de kenmerken van het perceel) toe te voegen. Als alternatief kunnen degenen die kiezen voor een huis met één verdieping ervoor kiezen om een jacuzzi op het solarium te installeren. De verdeling van deze villa’s is ontworpen om comfort te bieden in het dagelijks leven, met volledig uitgeruste open keukens, inclusief kookplaat, inductiekookplaat, oven, afzuigkap en gootsteen. Ook de badkamers zijn uitgerust. Bij alle woningen is een parkeerplaats bij de prijs inbegrepen. De locatie is een luxe. Je bevindt je op slechts 5 minuten van het centrum van “Polop de la Marina”, een charmant dorp dat traditie combineert met een breed scala aan diensten: restaurants, winkels, supermarkten, banken, ziekenhuizen en alles wat je nodig hebt voor het dagelijks leven. Om een perfecte ervaring compleet te maken, vind je vlakbij de villa’s meerdere routes voor wandelen en mountainbiken, samen met een sportcentrum uitgerust met paddle tennisbanen. Voor golfliefhebbers zijn er bovendien gerenommeerde golfbanen zoals Villaitana Golf, op minder dan 15 minuten rijden met de auto. En dat is nog niet alles! Op 5 minuten rijden is een van de grootste sportcomplexen van Spanje in aanbouw: “Ciudad del Deporte La Nucia”. Daar vind je nu al de prestigieuze Ferrer Tennis Academy en het Camilo Cano Olympisch Stadion. Dit complex in ontwikkeling omvat een voetbalcentrum, het belangrijkste surfpark in Spanje met golfslagbaden, accommodatie voor atleten en educatieve centra. En we mogen de prachtige stranden van de Costa Blanca niet vergeten, die zich uitstrekken over 244 kilometer kustlijn, en het prachtige Altea, een van de meest pittoreske dorpjes van het land. Bovendien vind je hier eersteklas golfbanen en infrastructuren zoals de luchthaven Alicante-Elche Miguel Hernandez, op slechts 50 minuten rijden met de auto. 971
Toon alle beschrijvingen
Plaats
Gebouwdetails
- Parkeren: 1 plek (open)
Voorzieningen en Functies
- Voorzieningen:

Geef een reactie