Basis
- Type: villa
- Slaapkamers: 3
- Badkamers: 2
- Apart toilet: 0
- Vloeren: 1
- Gebied : 95 m²
- Kavelgrootte: 1000 m²
Beschrijving
-
Beschrijving:
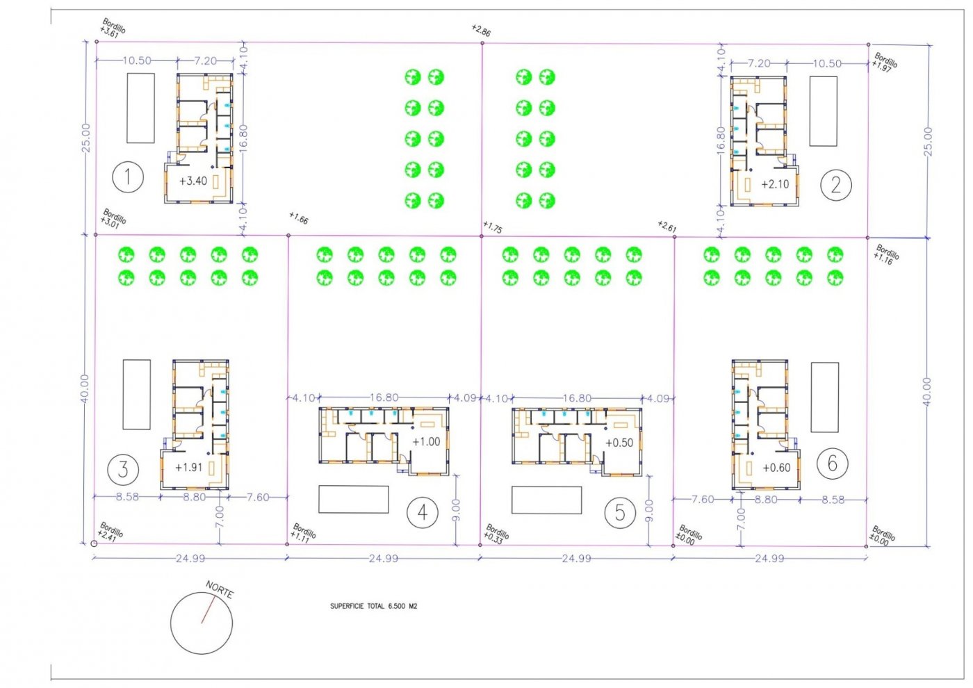
NIEUWBOUW VILLA’S IN CALASPARRA, MURCIA Nieuwbouwproject van prachtige villa’s in Calasparra, Murcia. Luxe complex van 6 onafhankelijke villa’s met groot privé zwembad voor elke woning. De villa’s zijn ontworpen op één niveau met terrassen rondom en hebben 3 slaapkamers, inclusief kleedkamer in de hoofdslaapkamer, 2 badkamers en een toilet. Deze villa’s worden gebouwd op percelen van 1000 M2. Calasparra ligt in een bergachtig gebied in het noordwesten van de provincie Murcia. In tegenstelling tot het omliggende dorre terrein, is het de ideale plek om te genieten van de rust en vrede die de natuur ons biedt. Zijn gastronomie, zijn hoeken, zijn klimaat en zijn mensen, maken een bezoek aan deze stad verplicht. Calasparra, omgeven door vier verschillende rivieren en twee moerassen, heeft een van de meest verbazingwekkende natuurlijke landschappen van het noordwesten. U zult versteld staan van zijn grotschilderingen, archeologische vindplaatsen, cultuur, buitensporten en zijn rijst, die waarschijnlijk de beste is die u ooit heeft geproefd.
Toon alle beschrijvingen
Plaats
Gebouwdetails
- Parkeren: 1 plek (open)
Voorzieningen en Functies
- Voorzieningen:

Geef een reactie