Basis
- Type: villa
- Slaapkamers: 4
- Badkamers: 5
- Apart toilet: 0
- Vloeren: 3
- Gebied : 250 m²
- Kavelgrootte: 1250 m²
Beschrijving
-
Beschrijving:
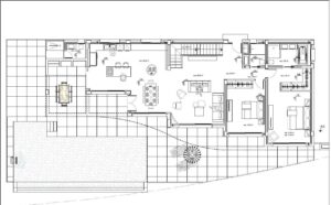
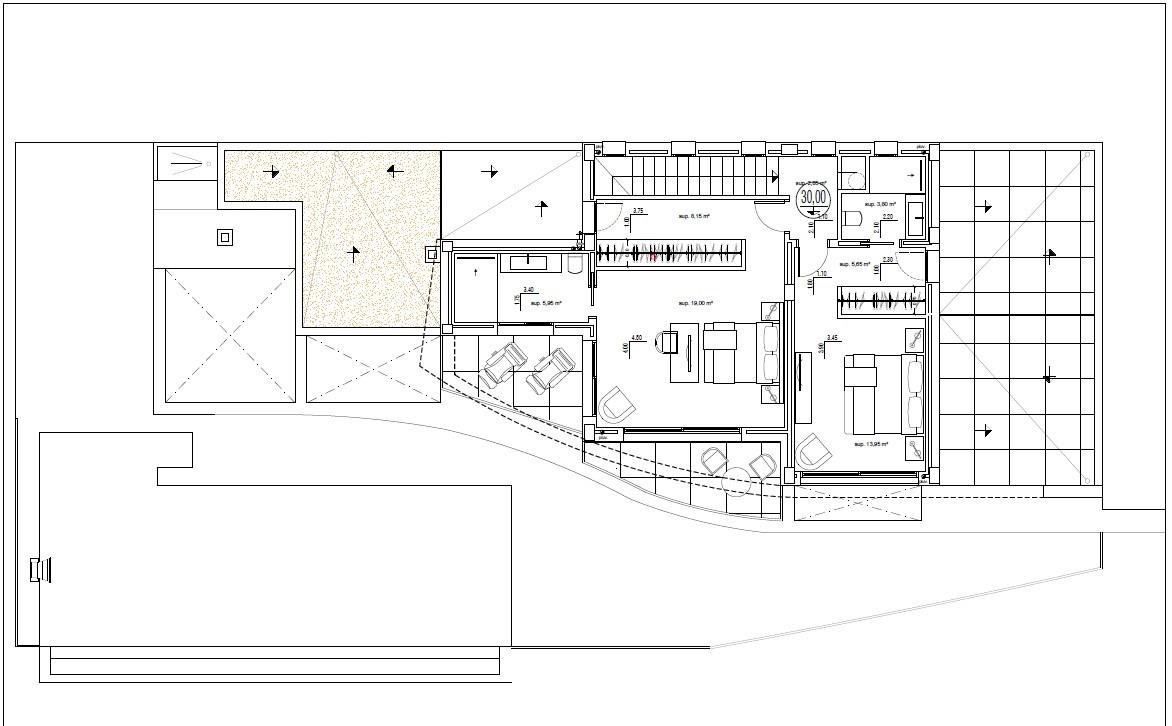
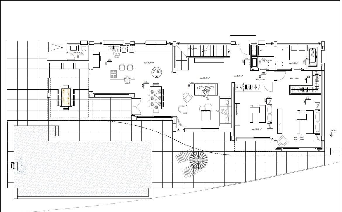
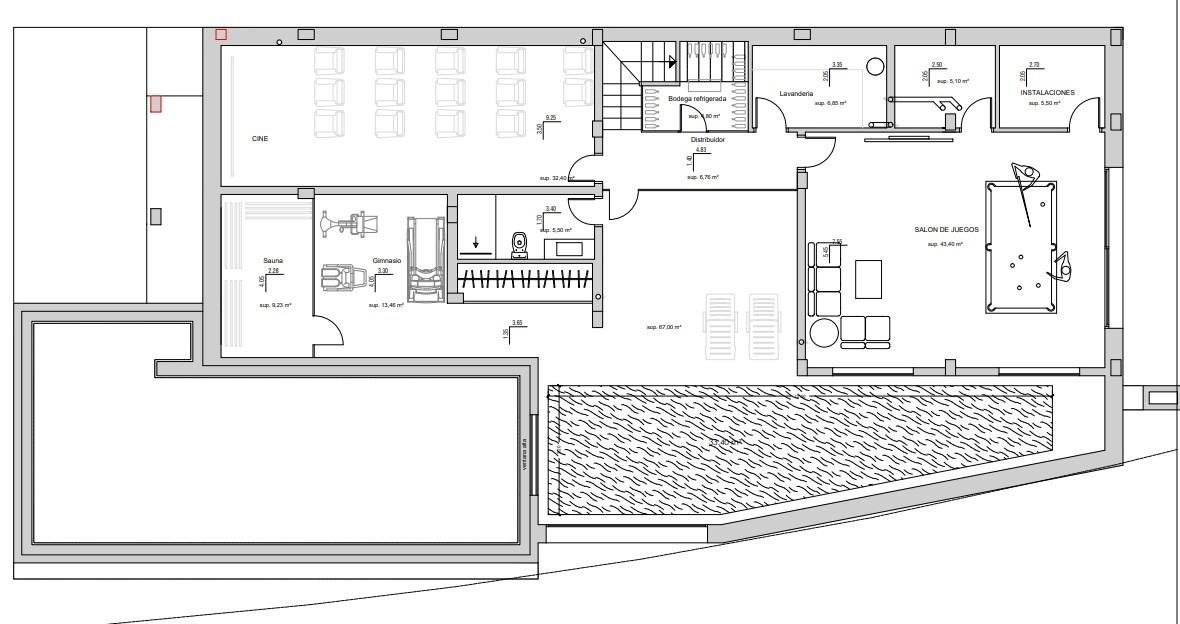
NIEUWBOUW VILLA MET ZEEZICHT IN BENISSA Nieuwbouw luxe villa gebouwd op een groot perceel van 1250m2, met prachtig uitzicht op zee en open uitzicht richting Moraira. Moraira, zeer goed gelegen in een rustige urbanisatie op slechts 200 m van het strand ”La Fustera” en 2 km van het centrum van Calpe. Luxe villa verdeeld over 3 verdiepingen en heeft 4 slaapkamers, 5 badkamers, ingerichte open keuken, woonkamer met grote ramen en directe toegang tot het zwembad. Mooi terras met het zwembad en en barbecue, vanwaar er prachtig uitzicht op zee is. De villa ligt in een van de mooiste woonwijken van de Costa Blanca. De plaatsen Calpe, Benissa en Moraira bieden een buitengewoon aantrekkelijke kustlijn van groot landschappelijk en ecologisch belang, met een ruige kustlijn met talloze stranden en verborgen baaien. Benissa ligt tussen Valencia en de stad Alicante. Het vliegveld Manises in Valencia ligt op een uur rijden en het vliegveld L’Altet in Alicante op 50 minuten rijden. Beide luchthavens zijn grote internationale luchthavens die worden bediend door een groot aantal low-cost luchtvaartmaatschappijen.
Toon alle beschrijvingen
Plaats
Gebouwdetails
- Parkeren: 2 plekken (open)
Voorzieningen en Functies
- Voorzieningen:

Geef een reactie