Basis
- Type: villa
- Slaapkamers: 3
- Badkamers: 2
- Apart toilet: 0
- Vloeren: 1
- Gebied : 120 m²
- Kavelgrootte: 742 m²
Beschrijving
-
Beschrijving:
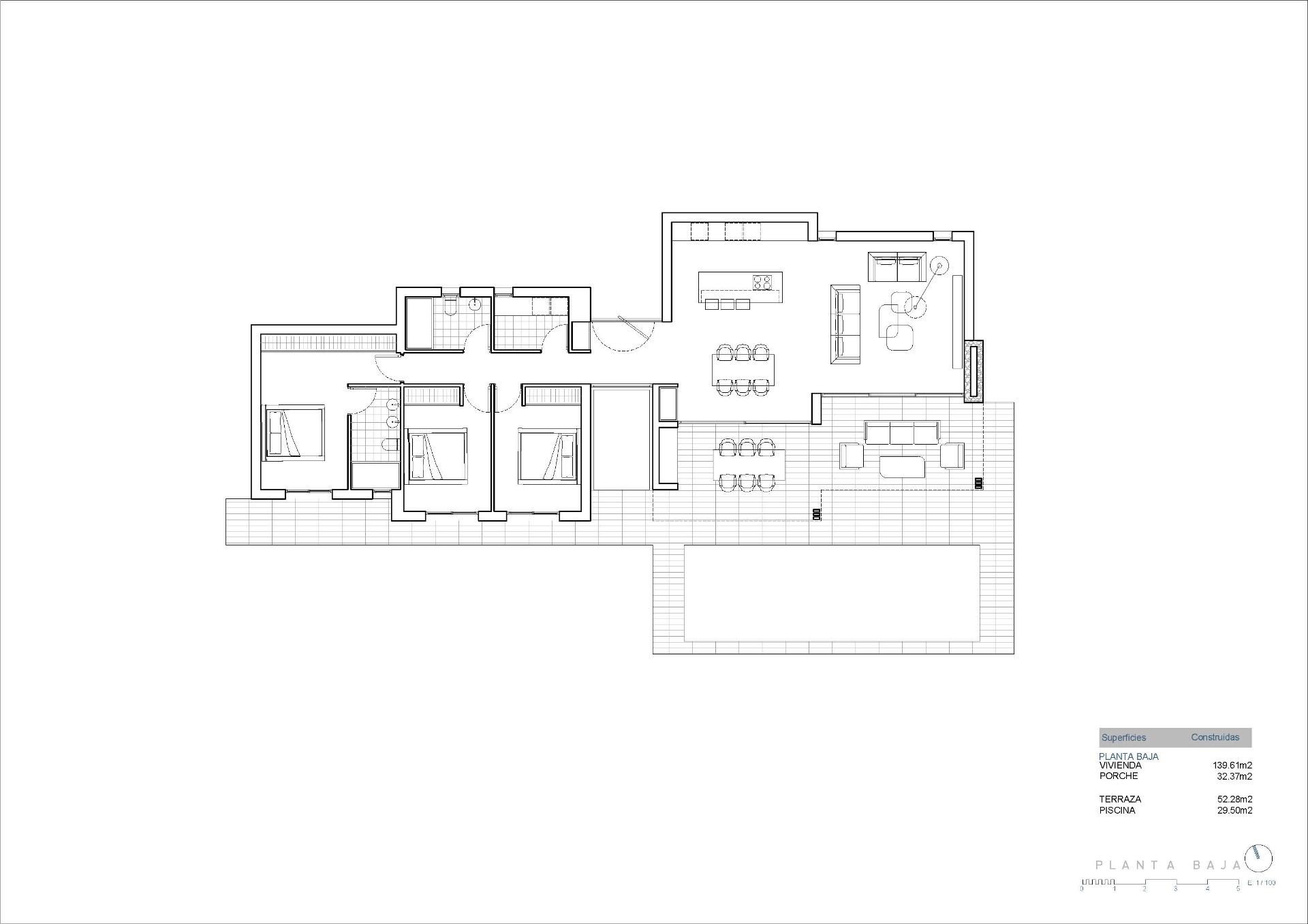
NIEUWBOUW VILLA IN CALPE Nieuwbouwvilla gelegen in een van de woonwijken die de voorkeur genieten van alle inwoners van Calpe, vanwege de nabijheid van het stadscentrum, de stranden en tegelijkertijd omdat het een rustige maar veilige buurt is, omdat het aan de rand van het stadscentrum ligt. De woning is gepland op een enkele verdieping, wat dit project praktisch en comfortabel maakt. Het hele perceel is omheind en heeft binnen een haag van cipressen, wat zorgt voor privacy en een aangename omgeving. Vanuit de hoofdingang van het huis hebben we toegang tot een hal, van waaruit we aan de linkerkant toegang hebben tot het daggedeelte, bestaande uit een woonkamer met eetkamer en open keuken met eiland. Vanuit de woonkamer hebben we toegang tot de buitenkant, waar we een overdekte veranda hebben met barbecue en een groot terras met zwembad van 40m2. Aan de rechterkant van het huis is het slaapgedeelte, met 4 slaapkamers: de master suite met kleedkamer en badkamer, een andere slaapkamer met en-suite badkamer en nog twee slaapkamers die een badkamer delen. Er is ook een wasruimte. Buiten is er een parkeerplaats met een pergola in de vorm van een zeil voor twee auto’s. Calpe, een van de steden van La Marina Alta, ligt aan de noordkust van de provincie Alicante, omringd door de steden Altea, Benidorm, Teulada-Moraira, Benissa. Calpe heeft een prachtige mix van oude Valenciaanse cultuur en moderne toeristische faciliteiten. Het is een prima uitvalsbasis om de omgeving te verkennen of te genieten van de vele plaatselijke stranden. Calpe alleen al heeft drie van de mooiste zandstranden aan de kust. Calpe heeft ook twee zeilclubs: Real Club Náutico de Calpe en Club Náutico de Puerto Blanco. Vissersdorp Calpe is nu omgetoverd tot een toeristische trekpleister, de stad ligt op een ideale locatie, gemakkelijk bereikbaar via de snelweg A7 en de N332 die van Valencia naar Alicante loopt; het is ongeveer 1 uur rijden van het vliegveld van Alicante en 1,5 uur van het vliegveld van Valencia.
Toon alle beschrijvingen
Plaats
Gebouwdetails
- Parkeren: 1 plek (open)
Voorzieningen en Functies
- Voorzieningen:

Geef een reactie