Basis
- Type: villa
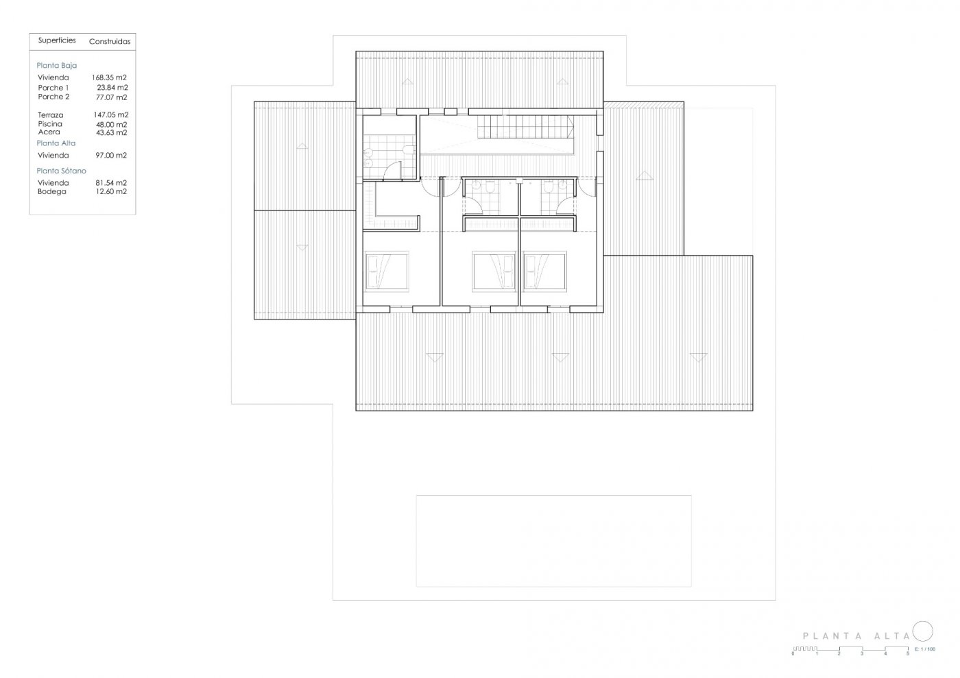
- Slaapkamers: 4
- Badkamers: 4
- Apart toilet: 0
- Vloeren: 3
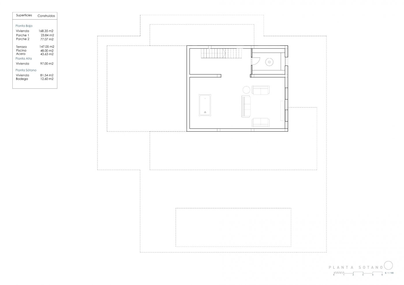
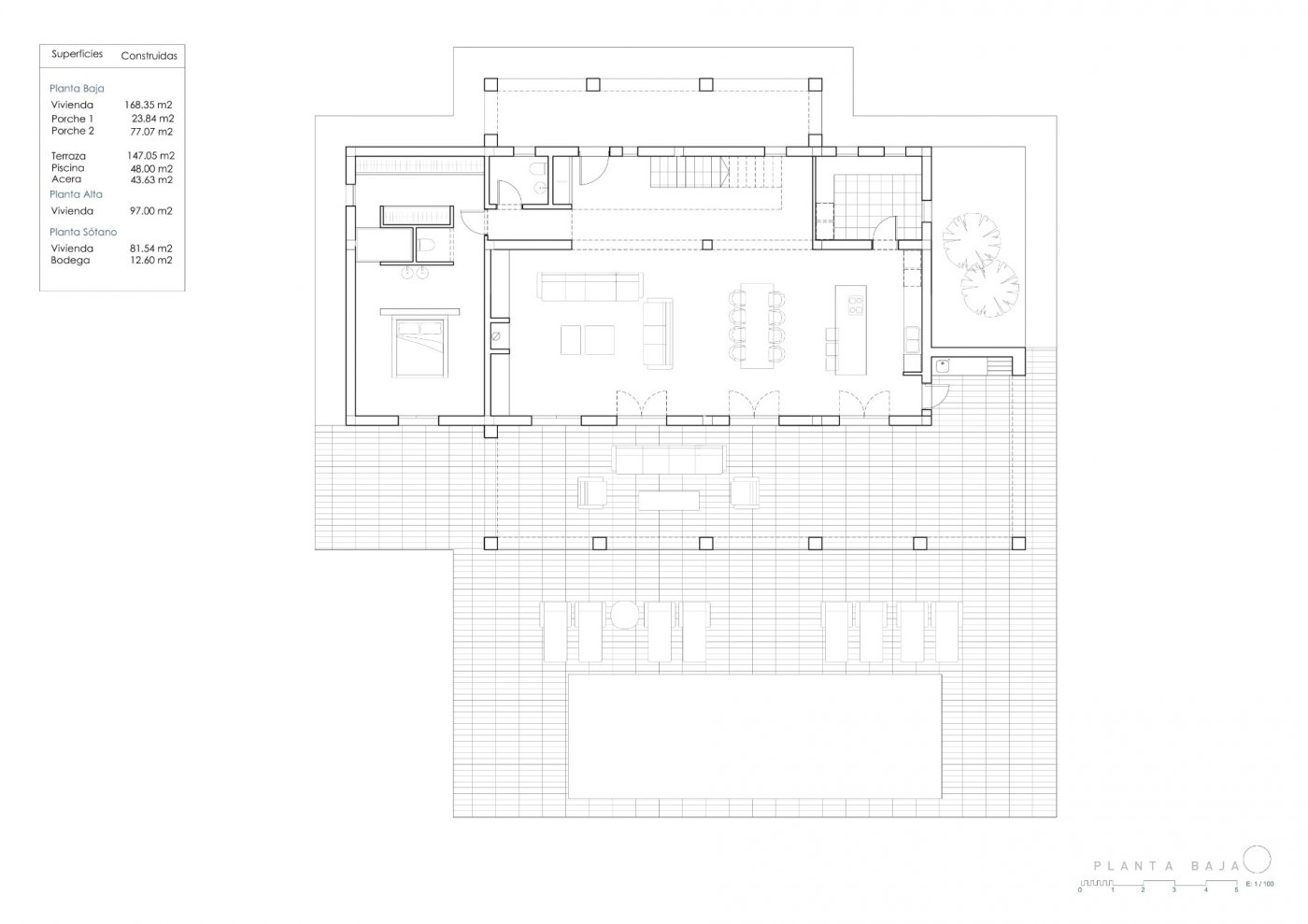
- Gebied : 300 m²
- Kavelgrootte: 13000 m²
Beschrijving
-
Beschrijving:
Nieuw gebouwde villa in Teulada met uitzicht op de bergen Op de begane grond vinden we een grote woon-eetkamer en open keuken, master bedroom met walking wardrobe en badkamer, terras aan de voorzijde met toegang tot het zwembad. Op de eerste verdieping is 3 slaapkamers met inbouwkasten, 3 badkamers en suite. Ook hier is er een kelder van 81m2 met wijnkelder. De villa zal worden gebouwd met materialen van hoge kwaliteit. De keuken zal worden gekozen door de klant, keukenkasten, werkblad en apparatuur. Airconditioning met klimaatbeheersingssysteem (condense) in de woonkamers en slaapkamers. Mitsubishi merk. Het zwembad zal worden gebouwd met een buiten douche (warm/koud water aansluiting). Automatische toegangspoort voor de auto’s met afstandsbediening en automatische voetgangersdeur. Tuin naar keuze van de klant. Moraira is een kleine stad met goede restaurants, bars en tal van supermarkten in de buurt. Er is een zeer aangenaam strand direct naast de stad dat zeer geschikt is voor gezinnen. De boulevard biedt een geweldig uitzicht op Penon Ifach aan de overkant van de baai in Calpe. De kustweg erheen is zeker de moeite waard met een aantal spectaculaire uitzichten. Moraira ligt ongeveer 1 uur 15 minuten ten noorden van de A7 vanaf de luchthaven van Alicante en is dus vrij gemakkelijk te bereiken. Het is ongeveer dezelfde afstand of iets minder naar het zuiden vanaf de luchthaven van Valencia.
Toon alle beschrijvingen
Plaats
Gebouwdetails
- Parkeren: 1 plek (open)
Voorzieningen en Functies
- Voorzieningen:

Geef een reactie