Hondón de las Nieves, Alicante
Hondón de las Nieves, AlicanteBasis
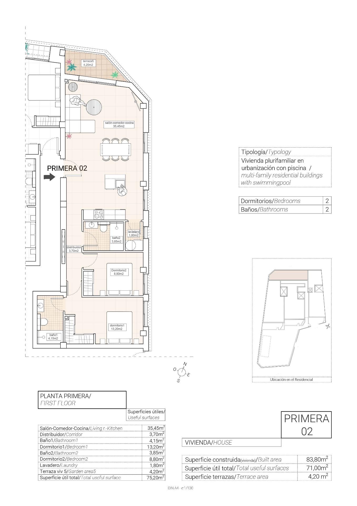
- Type: Apartment
- Slaapkamers: 2
- Badkamers: 2
- Apart toilet: 0
- Vloeren: 1
- Gebied : 71 m²
- Kavelgrootte: 0 m²
Beschrijving
-
Beschrijving:
Exclusieve nieuwbouwappartementen met uitzicht op de wijngaarden in Hondón de las Nieves Moderne woningen in een unieke natuurlijke omgeving Ontdek dit nieuwe appartementenproject in Hondón de las Nieves, een charmant dorp in een prachtige vallei omringd door olijf- en amandelboomgaarden. Dit project biedt 15 exclusieve woningen met 2 en 3 slaapkamers, allemaal ontworpen om maximaal comfort, energie-efficiëntie en een prachtig uitzicht op de wijngaarden van de Vinalopó te bieden. Deze rustige enclave ligt in Vinalopó Medio en is ideaal voor wie op zoek is naar een ontspannen mediterrane levensstijl, met gemakkelijke toegang tot de natuur en alle essentiële voorzieningen. Hoge kwaliteit en modern ontwerp Elke flat is ontworpen met materialen van topkwaliteit en een functionele lay-out, met: Ruime en open woonruimtes, ideaal voor het moderne leven. Volledig ingerichte keukens met granieten werkbladen. Topklasse badkamers met ingebouwde reservoirs en topkwaliteit sanitair. Energie-efficiëntie met aerothermisch systeem voor warm water. Pre-installatie van gekanaliseerde airconditioning, voor comfort in alle seizoenen. Aluminium ramen met dubbele beglazing voor thermische en akoestische isolatie. Versterkte veiligheidsdeur voor gemoedsrust. Parkeerplaats en berging in de kelder, inbegrepen in de prijs. Lift in het gebouw voor toegankelijkheid en comfort. Zonnepanelen op het dak om de energie-efficiëntie te verbeteren en de onderhoudskosten te verlagen. Bovendien beschikt de residentie over een gemeenschappelijk zwembad, perfect om te genieten van het mediterrane klimaat. Bevoorrechte locatie in Hondón de las Nieves Hondón de las Nieves is een stad met een grote wijntraditie, beroemd om zijn tafeldruiven met de oorsprongsbenaming Vinalopó. Het gebied wordt omringd door de Sierra de Crevillente en biedt talloze wandelpaden, natuurgebieden en een rijk cultureel en historisch aanbod. Vanuit je nieuwe huis heb je snel toegang tot de belangrijkste bezienswaardigheden in de omgeving: Vliegveld Alicante – 30 km (30 minuten met de auto). Stranden van Alicante – 35 km (35 minuten met de auto) Elche – 20 km (20 minuten met de auto) Natuurpark Crevillente – 10 km (15 minuten rijden) Golfbanen – 25 km (30 minuten rijden) Een ideaal huis aan de Costa Blanca Geniet van de rust van de Hondón Vallei, zonder de nabijheid van Alicante en Elche op te geven. Deze moderne appartementen zijn een onverslaanbare keuze voor permanente bewoning, vakantie of investering. Neem vandaag nog contact met ons op voor meer informatie of om een bezichtiging te regelen. 971
Toon alle beschrijvingen
Plaats
Gebouwdetails
- Parkeren: 1 plek (open)
Voorzieningen en Functies
- Voorzieningen:

Geef een reactie